Progetto per Nuova Edificazione
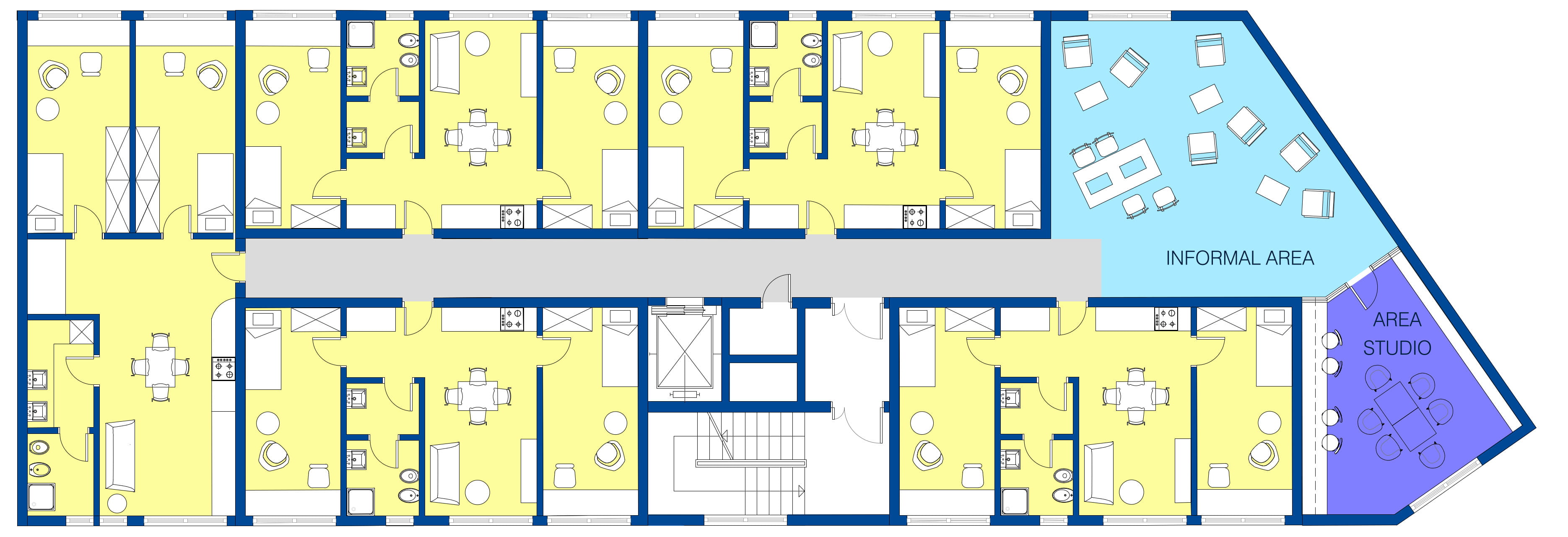
Il progetto comprende le Funzioni Residenziali per gli studenti: studio, ricerca, documentazione, lettura, riunione, ecc., che lo studente compie in forma individuale o di gruppo anche al di fuori del proprio ambito residenziale privato o semiprivato;
Servizi ricreativi: comprende le funzioni di tempo libero finalizzate allo svago, alla formazione culturale non istituzionale, alla cultura fisica, alla conoscenza interpersonale ed alla socializzazione, che lo studente compie in forma individuale o di gruppo al di fuori del proprio ambito residenziale privato o semiprivato;
Servizi di supporto: gestionali e amministrativi, accesso e distribuzione, accoglienza, parcheggio integrato dei mezzi in uso agli utenti e servizi tecnologici, spazi di parcheggio auto/moto/biciclette e mezzi di mobilita’ urbana individuale per persone con disabilita’ fisiche o sensoriali e la dotazione di vani tecnici e servizi tecnologici in genere, tra i quali punti di ricarica per i mezzi a propulsione elettrica.Prevista la funzione residenziale per il dirigente del servizio abitativo studentesco (alloggio per il direttore) e per il custode della struttura (alloggio per il custode).
Compatibilita’ ambientale: fonti energetiche rinnovabili, riutilizzo delle risorse idriche, materiali a basso impatto ambientale nell’ottica del riciclo e del riutilizzo.
un'approfondimento sul tema è disponibile qui
Località: Bologna Committente: Privato Superficie: 10.950 mq

![]() |
![]() |
![]() |


Italian (IT)
English (UK)


